Casa aparellada
en venda
a Ventalló
Ventalló
-
m2
188
-
Habitacions
3
-
Banys
3
Obra nova començada amb data prevista d'entrega a finals d'Octubre.
Ventalló, casa en venda d’estil empordanés, dissenyada per als qui busquen un estil de vida tranquil i sofisticat.
La casa està distribuida ...
Obra nova començada amb data prevista d'entrega a finals d'Octubre.
Ventalló, casa en venda d’estil empordanés, dissenyada per als qui busquen un estil de vida tranquil i sofisticat.
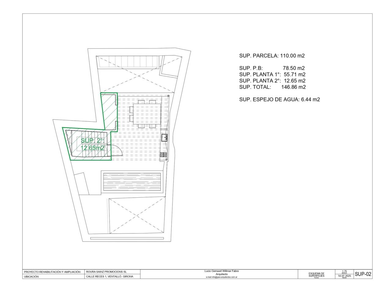
La casa està distribuida en dues plantes més àtic amb piscina i vistes panoràmiques, un espai únic per gaudir-ne tot l'any i sobretot les tardes i nits d’estiu.
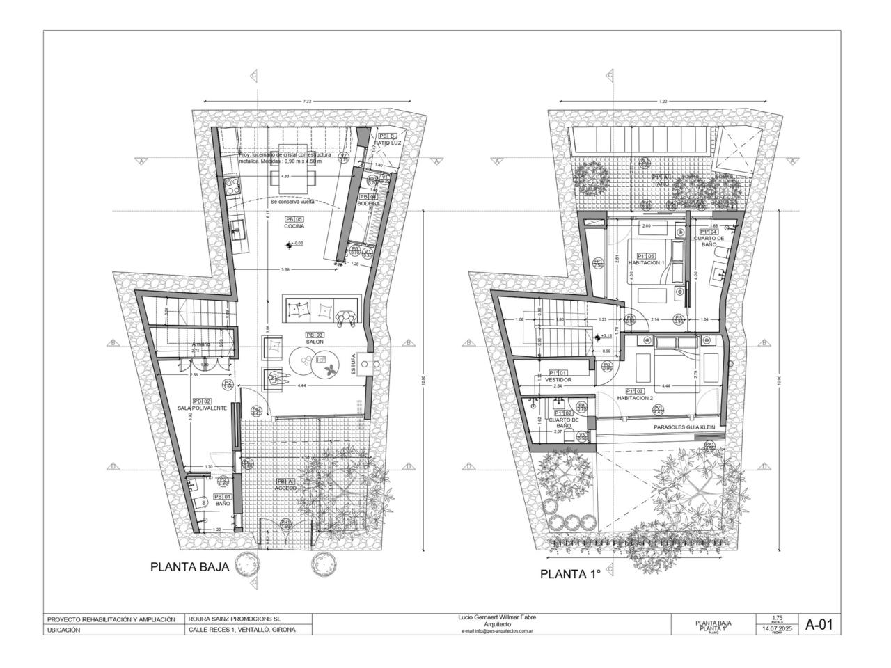
A la planta Baixa i accedim a través d'un pati de 15,20 m2 un espai per gaudir-lo amb intimitat, i que ens conecta amb un espai diàfan on tenim la sala d'estar amb cuina oberta, just al costat de la cuina tenim un espai per bodega o bé per despensa i un espai polivalent per donar-li lús que mes convingui (habitació, sala de jocs o bé menjador per trobades familiars) i un bany amb plat de dutxa.
A la primera planta tenim dues habitacions tipus suite, una amb vestidor, bany i sortida a terrassa de 5,86m2 i la segona una habitació doble amb bany amb sortida terrassa de 19,17m2.
A la planta àtic s'ha creat un espai ideal per gaudir-ne els dies d'estiu, amb piscina de 66,44m2 , zona de solarium i porxo ideal com a menjador d'estiu i cuina.
S'adjunta plànols i fotografies de l'estat actual de les obres actualitzades dia 16/07/2025
No dubtis a contactar amb nosaltres per visitar-la i demanar més informació
Llegir més
-
Orientació
Este
-
Accepten mascota
-
Jardí
-
Calefacció
-
Aire condicionat
-
Piscina
-
Terrassa
-
Superficie solar
110 m2
-
Superfície útil
147 m2
-
Cert. energètica
Disponible
5 Kg CO2/m2 any
Veure etiqueta energètica